Vybraná nemovitost není k dispozici.

Litomyšl bytové domy - Nabídka

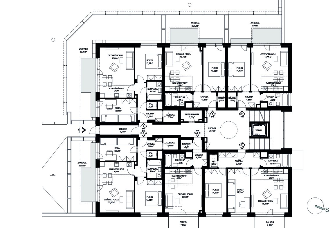
Litomyšl

Dva pětipodlažní domy a jeden bytový dům šestipodlažní s výtahem nabízí bytové jednotky do osobního vlastnictví o dispozicích 2+kk, 3+kk, 4+kk se zahrádkou, balkonem nebo terasou a sklepem. Součástí každého domu jsou společné prostory (kola, kočárky, ...). Garážové stání za 270.000,- se nachází v 1. NP. (Cena stání není součástí kupní ceny bytu) .

 

U každého z bytů mají klienti možnost měnit dispozice bytů mimo zásahu do nosných konstrukcí a vzhledu domu. V rámci standardního vybavení je na výběr vždy z velké škály dekorů a barev (obklady, dlažba, podlaha, dveře atd.).

Pokud si klient nevybere z nabídky standardního vybavení, lze zvolit nadstandardní vybavení dle vlastního výběru za doplatek.

Záruka na bytovou jednotku a vybavení je 24 měsíců.

Číslo Dispozice Podlaží Celková plocha Balkon / Terasa Sklep Cena Stav  
C.2_6 3+kk 2 84 m² ano ano   Prodáno
C.4_4 3+kk 4 106 m² ano ano   Prodáno
C.1_3 komerční prostor 1 68 m² ne ne   Prodáno
Zavřít

Máte otázky? Napište nám, rádi vám pomůžeme

V případě jakýchkoliv nezávazných dotazů nebo
Vašeho zájmu o koupi bytu či rodinného domu, nás kontaktujte:

* Všechny položky jsou povinné

Naše webové stránky používají cookies, které nám pomáhají zjistit, jak jsou naše stránky používány. Abychom cookies mohli používat, musíte nám to povolit. Kliknutím na tlačítko „OK, souhlasím“ udělujete tento souhlas.


Nastavení souborů cookies

Cookies jsou malé soubory, které webové stránky (i ty naše) ukládají ve Vašem webovém prohlížeči. Obsahy těchto souborů jsou vyměňovány mezi Vaším prohlížečem a našimi servery, případně se servery našich partnerů. Některé cookies potřebujeme, aby webová stránka mohla správně fungovat, některé potřebujeme k marketingové a statistické analytice. Zde si můžete nastavit, které cookies budeme moci používat.

Nezbytné cookies
Analytické cookies
Marketingové cookies